Kelly Allen
505.603.9161
$28

$28
505.603.9161
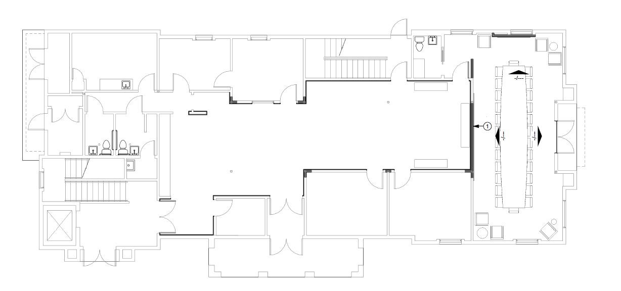
Welcome to 1048 Paseo de Peralta, a Class A office building ideally located in the heart of Santa Fe, adjacent to the Roundhouse and surrounded by the city's most prominent government, cultural, and commercial destinations. The property was completely remodeled and features high-quality Class A finishes throughout, offering a modern and professional environment for today's office users.The building benefits from a highly walkable and central location, just minutes from Canyon Road's renowned galleries, a variety of local restaurants and cafs, and downtown Santa Fe amenities. Its proximity to major state and local government offices, including the New Mexico State Capitol, makes it an exceptional location for legal, consulting, lobbying, nonprofit, and professional service firms seeking convenience and visibility.The building can leased in its entirety or each floor leased indavidually. Ground Floor: 3,341 SF / 4 Private Offices / Break Room / Confrence room / 2 bathrooms Second Floor: 4,259 SF / 5 Private Offices / Break Room / 2 Conference rooms / 2 bathrooms / printer room
Jacob Rocker
Real Estate Advisors, LLC