Kelly Allen
505.603.9161
$525,000

$525,000
505.603.9161
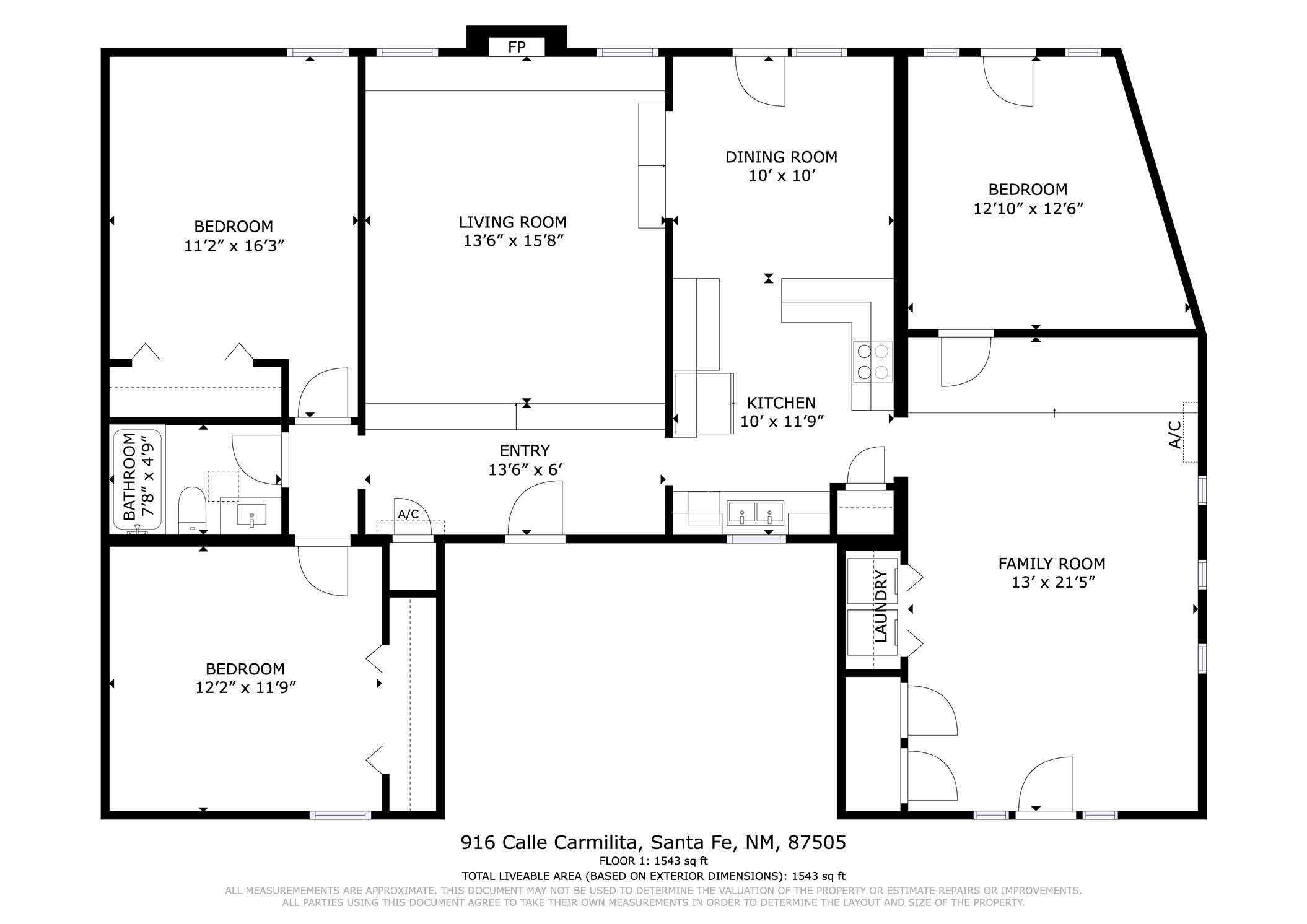
MOTIVATED SELLERS Price cut $25,000. Great neighbors and neighborhood. Close to parks, quick access to The Plaza. Perfect location, center of town. 2 bedroom home featuring an additional bonus room ideal for an office or additional bedroom. this residence includes 2 comfortable living areas and a kitchen highlighted by stunning quartz countertops along with attractive wood and tile flooring. Step outside to a serene front courtyard surrounded by coyote fencing, perfect for outdoor enjoyment. Energy-efficient mini-splits contribute to an eco-friendly lifestyle. The community park includes a basketball court, playground and a garden. With no HOA limitations and the possibility for short-term rentals, you'll be minutes from the Capital and vibrant cultural offerings of the area,
Jill Stafford
Coldwell Banker Legacy 8200