Kelly Allen
505.603.9161
$440,000

$440,000
505.603.9161
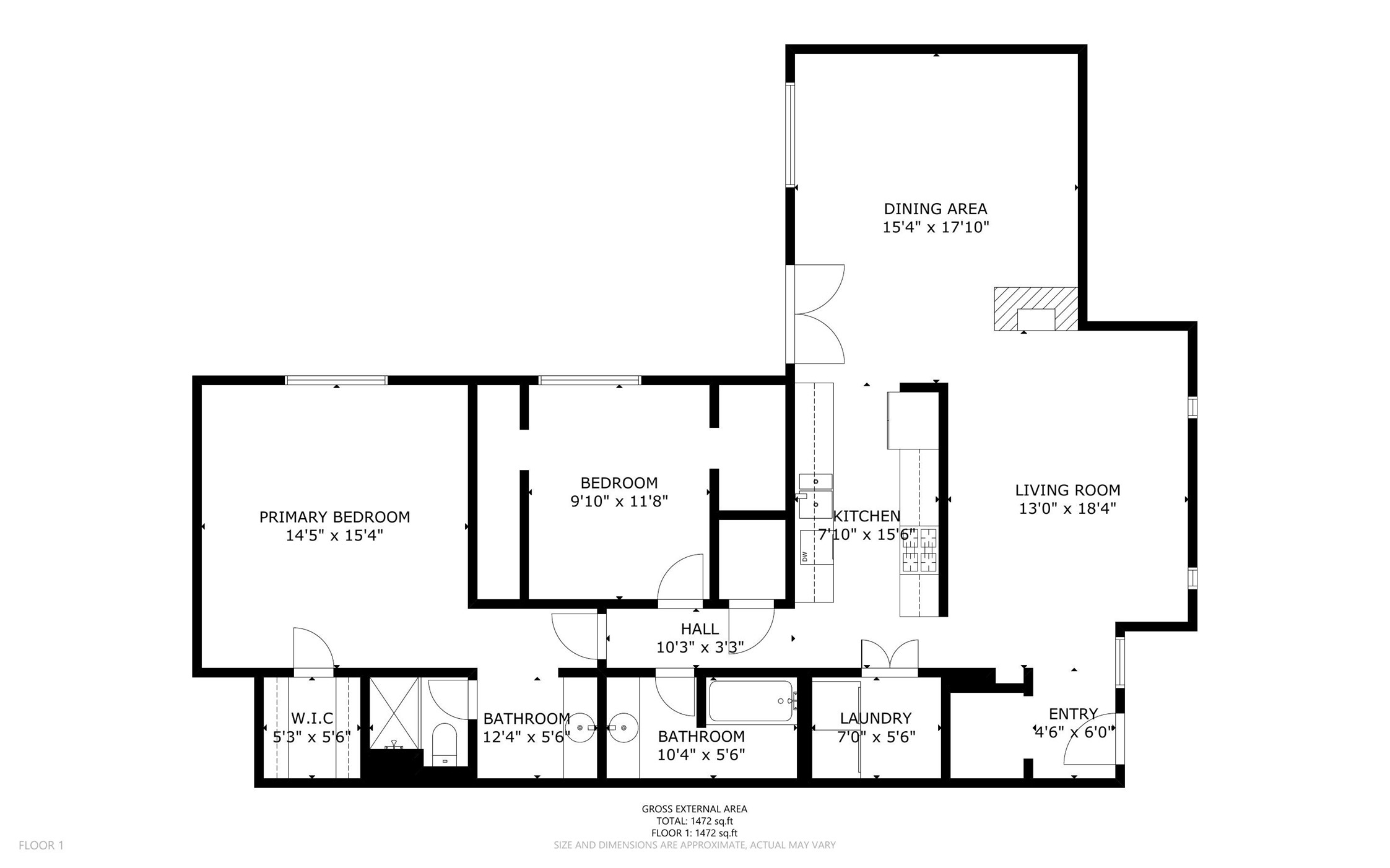
Welcome to 375 Cheryl Court! This light and bright single-level end-unit townhouse offers over 1,500 square feet of stylish and comfortable living in a peaceful setting. With 2 bedrooms and 2 bathrooms, this thoughtfully updated home blends modern finishes with convenience and charm. Come inside to find updated flooring throughout, a spacious kitchen featuring granite countertops, stainless steel appliances, and plenty of cabinetry. The generous primary suite includes a private en suite bathroom and a walk-in closet. Enjoy A/C for those hot summer days, newer windows, refreshed stucco, and the ease of a large carport plus a bonus insulated storage room with electricity--perfect for hobbies, a workshop, or extra storage. A cozy patio area offers a great spot to relax outdoors. Just outside the front door is a beautiful community garden maintained by the HOA, and scenic walking paths lead to Chamisa Elementary just a short stroll away. This is low-maintenance living at its best!
Rebecca Jones
EXIT Realty Advantage NM