Kelly Allen
505.603.9161
$963,000

$963,000
505.603.9161
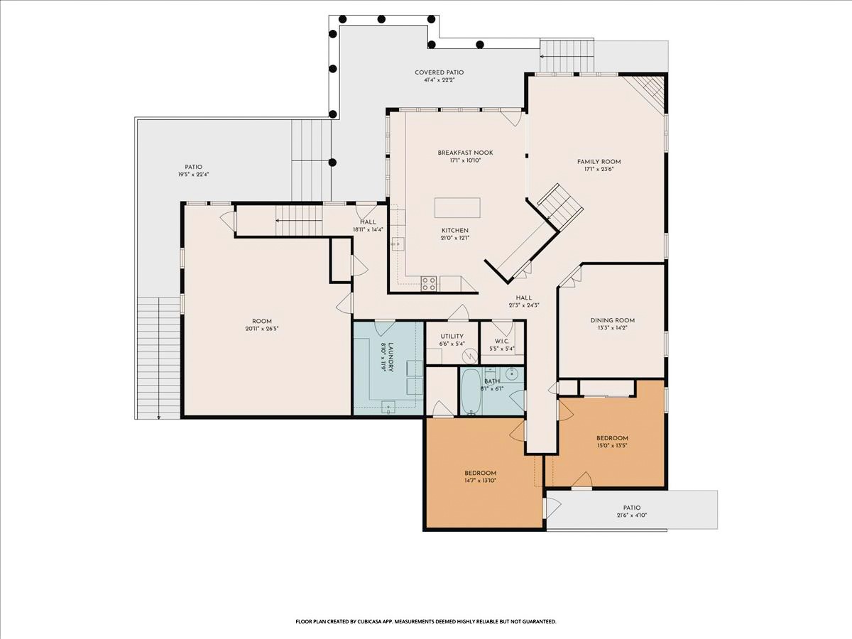
Crafted with enhanced safety standards and durability at the forefront, this 2004-built residence features exceptional construction, including 2x10 wall framing with R-32 insulation and a 1.5-inch fire-rated stucco exterior. The 2011 metal roof, designed to resemble classic clay tile, is fully fireproof and includes a transferable warranty, while double-pane skylights enhance both efficiency and natural light. A grand foyer welcomes you inside, where a striking stone fireplace and iron staircase anchor the living spaces and set a refined tone. Arched windows accentuate the home's distinctive character and fill the space with natural light. The upper level features two bedrooms, including a well-appointed primary suite with a spa-like bath, generous walk-in closet, and private sitting area. A den overlooks the living room below, adding dimension and openness to the design. The lower level serves as the heart of the home. Arched architectural details lead into the dining area and kitchen, where custom alder wood cabinetry, granite tile countertops, and a 2025 appliance suite create a functional and stylish workspace. An island with a pullout workstation offers added versatility. This level also includes two additional bedrooms and direct access to the backyard. Just off the kitchen, the patio is thoughtfully designed for year-round enjoyment, complete with integrated Bose speakers and a balance of shelter and openness ideal for entertaining. A 550-square-foot bonus room--originally designed as a dance studio--offers flexible use as a home theater, game room, or creative space. Additional features include in-floor radiant heating throughout both levels, central air conditioning, and solid-core ADA compliant doors. The oversized garage accommodates larger vehicles. Located near hiking trails, public transportation, and the local high school, this property combines thoughtful design, quality construction, and everyday livability. Schedule a private showing today.
Paula Glover
New Mexico Real Estate Group L